Nyhet! 5 eneboliger av dennetypen kommer nå for salg ogskal bygges i løpet av 2026. 1 forhåndssolgt - 4 ledige. Nå lanserer vi en ny, arealeffektiv enebolig på ca. 95 m2 – perfekt for deg som ønsker alt på ett plan og en enkel, komfortabel hverdag. Ved reservasjon gir vi deg mulighet til å ta dialogen med utbygger før du bestemmer deg. Ta kontakt nå og reserver en bolig gratis i opptil 2 uker.

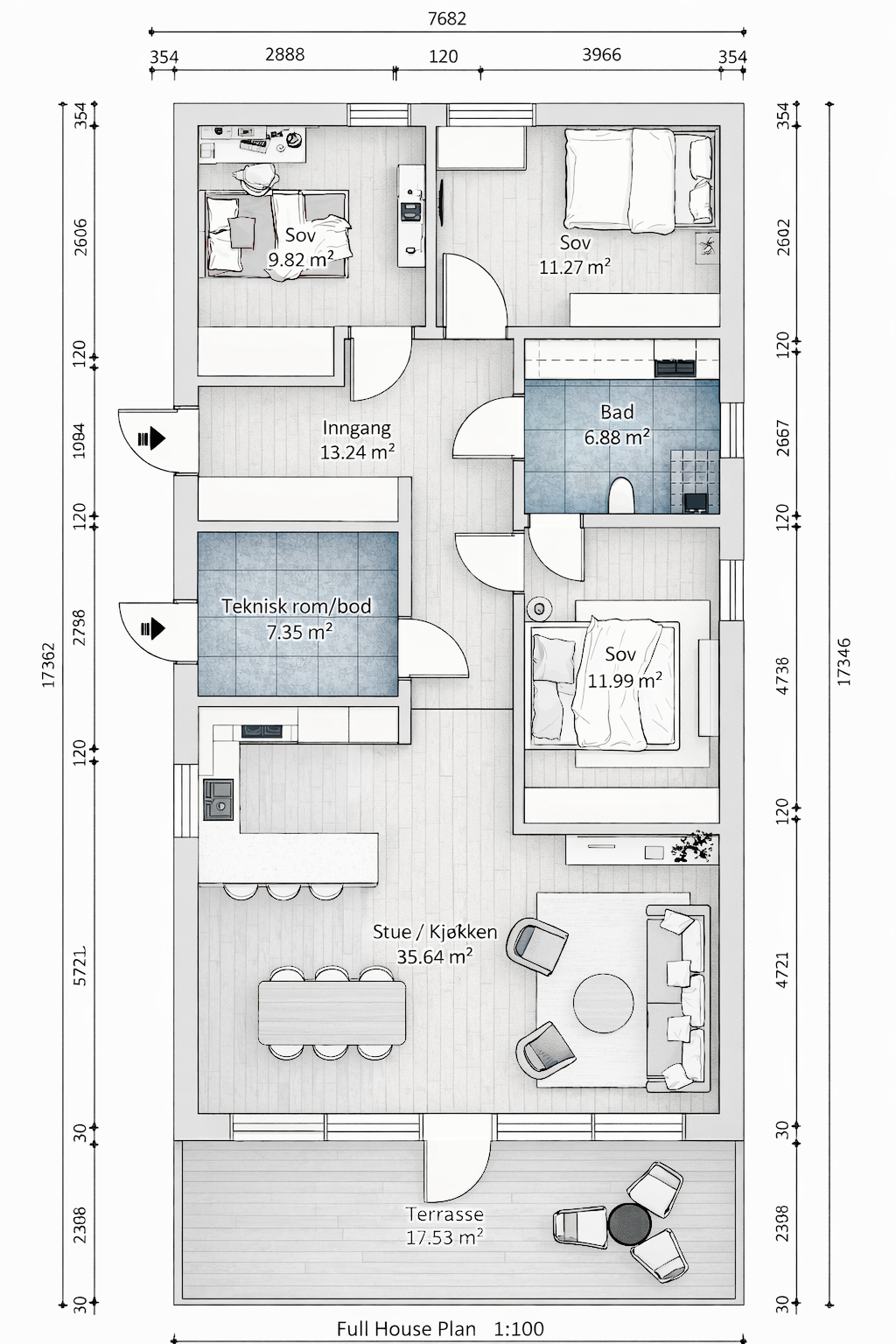
Boligen har en gjennomtenkt planløsning med romslig stue/kjøkken på 35 m2, tre gode soverom og stort bad/vaskerom.Store vinduer gir rikelig med lys, og dette er en moderne boligsom er lett å bo i – både for barnefamilier, førstegangskjøpereog deg som ønsker noe mer praktisk enn to etasjer.

HER FÅR DU:
• Alt på ett plan – praktisk og fremtidsrettet
• Nøkkelferdig bolig til fast pris (carport kan leveres som tillegg)
• Solrike tomter i et etablert og ferdig opparbeidet felt
• Kommunal vei, fortau og gatelys – uten ekstra kostnader

Nøkkelinfo

Prisantydning
5 000 000
Totalpris
Boligtype
Enebolig
Soverom
3
Primærrom
Bruksareal
95
Eieform
Selveier
Beliggenhet
tomt 57a, 57b, 58, 59
Status
Til salgs
Ansvarlig megler
Utbygger
Bolighus Norge AS
Utbygger - kontaktperson
Rolf Kåre Ingebrigtsen
93623299
rolf@bolighusnorge.no
Oppgjørsansvarlig
Les mer på finn.no
No items found.